
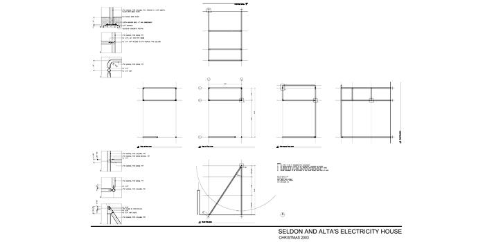
This project is an outdoor room for two young children. It incorporates places to sit and stand on, things to climb and swing on, and most importantly places to hide within. The project is an answer to the lack of quality, good design and price of play equipment available on the market. The shape and material palette are kept simple, foregrounding those using it rather than the thing used. The shape creates two elevated rooms; places for the children to escape to with their friends. The top room provides a view over the Los Angeles basin, not afforded elsewhere on the property. The materials – 2” metal pipe, plastic / wood lumber, nylon climbing net – require little to no maintenance and are durable enough to withstand elementary school aged kids. Accenting the idea of enlarged vistas, two swings hang from a bar whose centerpoint is 12 feet above grade. This radius allows for a tremendous arc offering another way to experience the surrounding neighborhood.