
2D
3D
Completed Fall 2005
Photography by Eric Staudenmaier
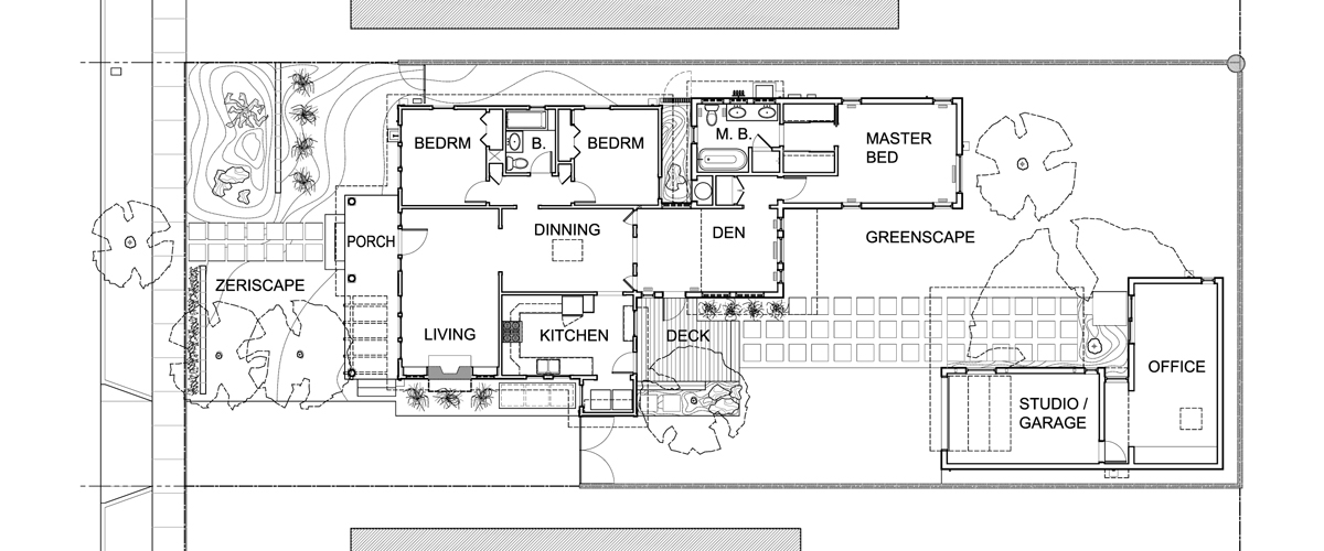
This renovation and addition project took a 900 square foot, 1920's 'Craftsmanesque' house - in a very challenged state - and brought it back to life.
We added 600 sf to the house and built a 500 sf garage / studio / office, all without destroying the integrity of the existing house. From the street, the new is barely visible, allowing the spruced up original to shine. Only once you enter into the dinning room or stroll down the driveway does the new make itself known. Views from within the home focus on the greenscape, creating an open and private feel. The home is superinsulated, and utilizes cross ventilation to minimize the need for mechanical heating and cooling.